- Tenant Ready Package, includes landscaping, concrete
driveways, patios and window coverings. - Homes specified to be “Renter Friendly”, low maintenance,
functional and durable. - Healthy homes compliant.
- Rental appraisals provided.
- Recommendations to local property managers.
- Receive weekly updates and photos as your investment
build progresses.
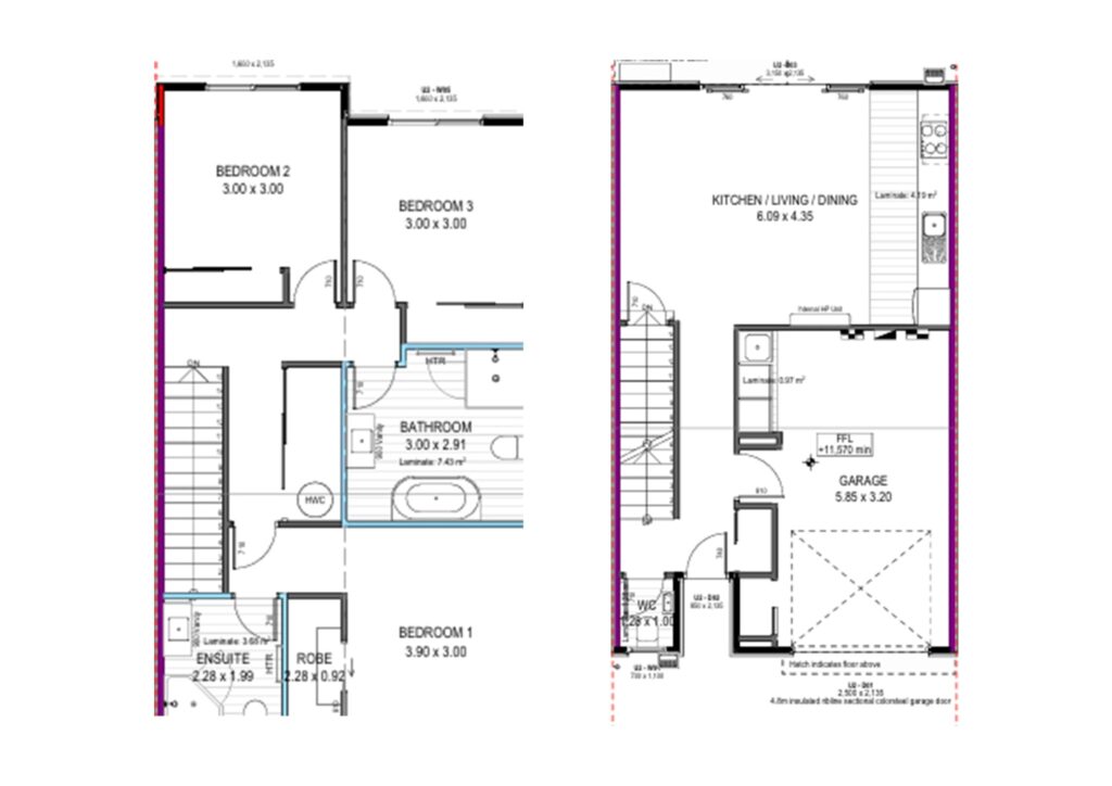
29 West Belt, Lincoln - Townhouse 1-2
Key Features & Benefits
Townhouse 1
$695,000
Townhouse 2
$695,000
Discover Lincoln
Only 21 km from Christchurch, Lincoln has grown into one of New Zealand’s most sought-after communities. Families are drawn to its excellent schools, parks, and modern amenities, and of course the very sought after Lincoln university. For investors, Lincolns rapid population growth, strong rental demand, and major infrastructure upgrades make it a prime location for both capital growth and reliable returns, with a very high demand on families accomodation within the university. Whether you’re looking to settle down or secure a smart investment, Lincoln offers the best of both worlds.



