- Tenant Ready Package, includes landscaping, concrete
driveways, patios, and window coverings. - Homes specified to be “Renter Friendly”, low maintenance,
functional and durable. - Healthy homes compliant.
- Rental appraisals provided.
- Recommendations to local property managers.
- Receive weekly updates and photos as your investment
build progresses.
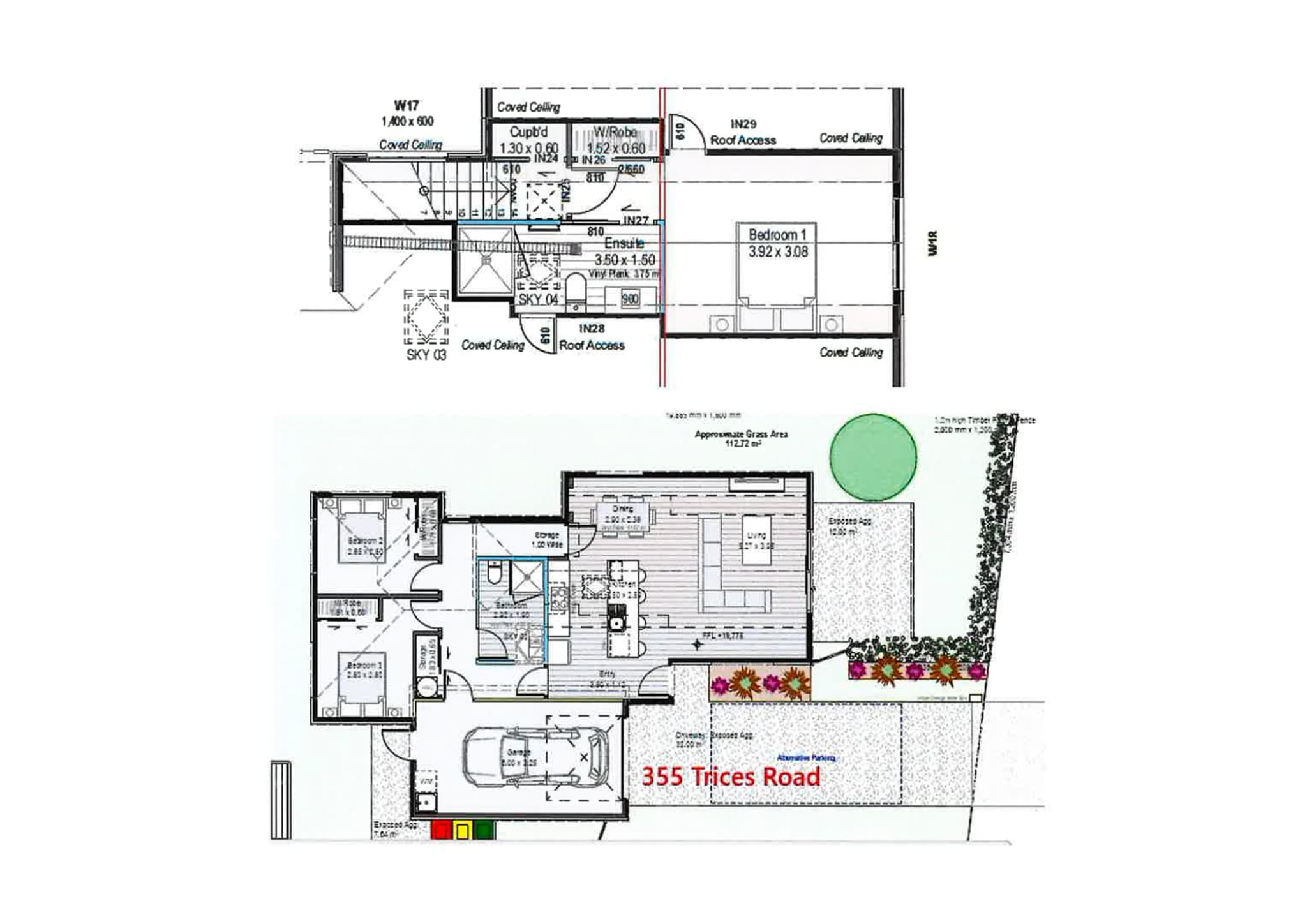
355 Trices Road, Prebbleton
Key Features & Benefits
Townhouse 1
$785,000
Discover Prebbleton
Prebbleton is a growing villagetown in the Selwyn District of the Canterbury region in New Zealand, located roughly 11 km south-west of the Christchurch city centre. Prebbleton is known as a family-friendly suburb with many parks, community center, and local amenities that cater to families.
For investors, Prebbletons rapid population growth, strong rental demands, and major infrastructure upgrades make it a prime location for both capital growth and reliable returns. Whether your looking to settle down or secure a smart investment, Prebbleton offers the best of both worlds.


